
UPDATED:
Key Details
Property Type Single Family Home
Sub Type Single Family Residence
Listing Status Active
Purchase Type For Sale
Square Footage 1,434 sqft
Price per Sqft $182
Subdivision Navarro Fields
MLS Listing ID 582667
Style None
Bedrooms 3
Full Baths 2
Construction Status Under Construction
HOA Y/N Yes
Year Built 2025
Lot Size 6,098 Sqft
Acres 0.14
Property Sub-Type Single Family Residence
Property Description
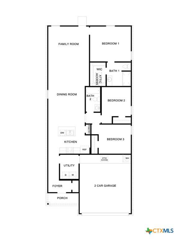
From the front porch, step inside the home and cross through the foyer and hallway. The utility room is off the hall and connects to the garage, making it a perfect mud room. The heart of the home is the open concept living space. The kitchen, dining and family room flow seamlessly into the other, making this space perfect for creating lasting memories. The kitchen features an island with a stainless-steel sink, quartz countertops, 42” upper ‘picture frame' cabinets, a pantry closet, and stainless-steel appliances.
The primary bedroom is located at the back of the home. Unwind at the end of your day in this private ensuite. The attached bathroom includes a walk-in shower, cultured marble vanity with trench sink and a walk-in closet.
The secondary bedrooms and bathroom are located off the kitchen. The bedrooms include carpet and closets with wood shelving. The secondary bathroom has a shower/tub combination and a cultured marble vanity with trench sink.
This home features our America's Smart Home base package, which includes the Amazon® Echo Pop, Video Doorbell, Front Door Key Code Deadbolt Lock, Home Hub, Thermostat, and Deako Smart Switches.
Location
State TX
County Guadalupe
Interior
Interior Features Attic, Primary Downstairs, Main Level Primary, Pull Down Attic Stairs, Stone Counters, Smart Home, Smart Thermostat, Vanity, Wired for Data, Walk-In Closet(s), Kitchen Island, Kitchen/Family Room Combo
Heating Electric
Cooling Central Air, Electric, 1 Unit
Flooring Carpet, Vinyl
Fireplaces Type None
Fireplace No
Appliance Dishwasher, Disposal, Gas Range, Gas Water Heater, Microwave, Plumbed For Ice Maker, Some Gas Appliances, Range
Laundry Washer Hookup, Electric Dryer Hookup, Laundry in Utility Room, Main Level, Laundry Room
Exterior
Parking Features Attached, Garage
Garage Spaces 2.0
Garage Description 2.0
Fence Back Yard, Privacy, Wood
Pool None
Community Features None, Curbs, Sidewalks
Utilities Available Electricity Available, High Speed Internet Available, Phone Available, Trash Collection Public
View Y/N No
Water Access Desc Public
View None
Roof Type Composition,Shingle
Building
Story 1
Entry Level One
Foundation Slab
Water Public
Architectural Style None
Level or Stories One
Construction Status Under Construction
Schools
Middle Schools Navarro Junior High School
High Schools Navarro High School
School District Navarro Isd
Others
Tax ID 196934
Security Features Prewired,Smoke Detector(s)
Acceptable Financing Cash, Conventional, FHA, Texas Vet, VA Loan
Listing Terms Cash, Conventional, FHA, Texas Vet, VA Loan
Special Listing Condition Builder Owned
Virtual Tour https://mls.ricoh360.com/34a9a056-1b1b-4c40-b32c-f5e08b08c234

GET MORE INFORMATION





